Neubau einer Heilerziehungspflegeschule
mit Offener Hilfe in Neumarkt
| BauherrIn: | Regens-Wagner-Stiftung Lauterhofen |
| Ausführungsort: | Dr.-Schrauth-Straße, 92318 Neumarkt i.d. Oberpfalz |
| Umfang Freianlagenplanung: | 3.600 m² |
| Beauftragte Leistungsphasen: | 1-9 |
| Team: | Sebastian Berr |
| Architekturbüro: | Haindl + Kollegen Architekten |
| Planung: | 2012 – 2016 |
| Ausführung: | 2015 – 2016 |
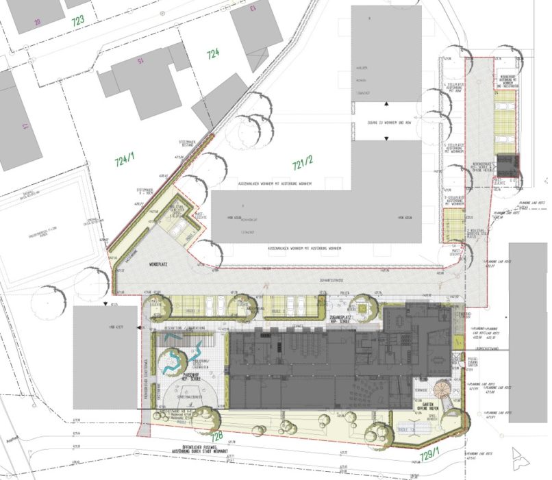
Planungsleistungen:
- Erschließungsstraße, Parkplätze
- Schuleingangsbereich
- Pausenhof mit Pergola als räumliche Begrenzung
- Getrennter Garten für Offene Hilfe
- Regen-und Schmutzwasserentsorgung
Projektbeschreibung:
Die Regens-Wagner-Einrichtung Lauterhofen konnte in einem neuen Baugebiet in Neumarkt eine Berufsschule für Heilerziehungs-Praktiker, sowie die Einrichtung der „Offenen Hilfen“ realisieren.
Die Freiräume sind, den Gedanken der baulichen Nutzung entsprechend, offen und einladend gestaltet. Dabei steht eine klare Ablesbarkeit der Beziehungen durch die einfache Unterscheidung der jeweiligen Nutzungen (Fahren, Parken, Gehen, Aufenthalt im öffentlichen oder im privaten Raum), sowie die Erfüllung der technischen Anforderungen bei einer zurückhaltenden Formensprache im Vordergrund.
Eine großzügige Überdachung schafft die räumliche Begrenzung des Pausenhofes als Kernstück der Planung. Schattenspende Bäume, einladend gestaltete Sitzmöbel und eine Basketballausstattung ermöglichen die Nutzung des Hofes zur Erholung aber auch als Veranstaltungsort im Freien.










