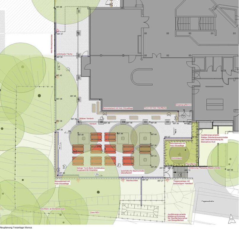
Umnutzung eines Restaurants zu einer Schulmensa in der Mehrzweckhalle Georg-Zech-Allee – Freianlage
| BauherrIn: | Landeshauptstadt München – Referat für Bildung und Sport |
| Ausführungsort: | München |
| Umfang Freianlagenplanung: | 610 m² |
| Beauftragte Leistungsphasen: | 1-9 |
| Team: | Ulrich Egger, Heidi Nett – Oppenländer, Tamara Löffler, Björn Vogel |
| Architekturbüro: | Braun Architekten GmbH |
| Planung: | 2020 – 2021 |
| Ausführung: | 2021 – 2022 |
Planungsleistungen:
- Neubau eines Außenbereiches als Erweiterung der im Gebäude liegenden Schulmensa
- Platzgestaltung mit fester Bestuhlung und Beschattung durch Baumpflanzungen
- räumliche Platzeinfassung durch Sitzgelegenheiten aus Betonblöcken mit Sitzauflagen
- behutsames Bauen im Bestand und teilweise auf unterbauten Flächen
- Integration der neuen Freianlage in die bestehende Umgebung



