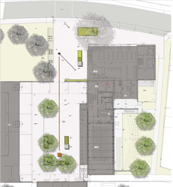
Umbau und Sanierung Pfarrheim
St. Andreas Eching
| BauherrIn: | Erzbischöfliches Ordinariat München Gemeinde Eching |
| Ausführungsort: | Danziger Strasse, 85386 Eching |
| Umfang Freianlagenplanung: | 2.000 m² |
| Beauftragte Leistungsphasen: | 1-9 |
| Team: | Ulrich Egger, Birgit Welsch–Egger, Alejandra Fajardo |
| Architekturbüro: | Architekturbüro Steinberger |
| Planung: | 2009 – 2011 |
| Ausführung: | 2013 |
Planungsleistungen:
- Gestaltung eines befestigten Innenhofes als Aufenthaltsbereich und Plattform für vielfältige Veranstaltungen der Pfarrgemeinde
- Entwicklung der Achse Kreuz – Brunnen als verbindendes, zentrales Element
- Gestaltung des Straßenbereiches und des Vorbereiches der Bibliothek








